Реки шепчут путь, пастбища в зелени спят, в горы уходит время
Концепция
«Алтайское поселение» — это уютный, живописный двор, расположенный в ЖК «Зеленая фабрика». Вдохновленный историей и природой этого региона, он воссоздает атмосферу древних поселений вдоль реки Оби и городов-крепостей, таких как Абакша. Здесь чувствуется дух древних телеутов — суровых и свободных воинов, которые совершали набеги и защищали свою землю. Этот двор — воплощение духа Алтая: свободного, сильного, связанного с природой и историей региона. Он приглашает гостя ощутить атмосферу древних времен и почувствовать дыхание степей и гор.
По алтайским повериям, Бог Улгень сотворил Алтай за три дня
А на третий день — людей и животных
В первый день — леса и горы
Во второй день — реки и озера
От легенды к реальности
Эскиз
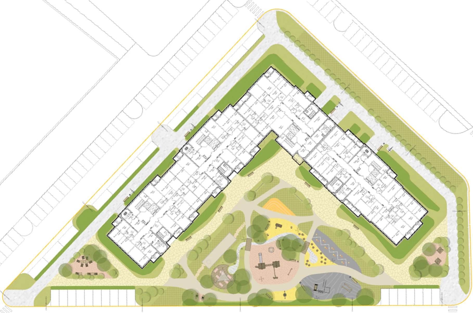
Иллюстративный план
Тематические функциоальные пространства
Каменная «река» — колыбель поселения: Вдохновлена одновременно рекой Барнаулкой и богатством рек Алтайского края.
Игровая площадка «Деревня»: Основная общая игровая зона вдохновлена Алтайскими деревянными постройками.
Игровая площадка для малышей «Пастбище»: Безопасное и увлекательное пространство для первых игр и исследований для малышей в возрасте от 0 до 5 лет.
Спортивная зона «Разбойники»: Вдохновленная динамикой движения и спортивным азартом, включает уличные тренажёры, позволяющие развивать силу, выносливость и координацию.
Спортивная зона «Пристань»: Пространство неспешных активностей, вдохновлённое атмосферой речной пристани.
Зоны отдыха «Тенистые уголки»: Приглашают жителей отдохнуть в прохладе листвы, пообщаться или провести время за настольными играми.
Внедрение устойчивых решений
«Каменная река» как дождевой сад
- Предложения по организации рельефа
Наше предложение основывается на сохранении рельефа, предусмотренного архитектурным проектом, с небольшими корректировками для эффективного водоотвода. Мы слегка поднимаем отметку юго-западной границы двора, чтобы направить дождевые потоки в наш дождевой сад – «Каменную реку».
- Как это работает?
1. Сбор воды: дождь или талые воды собираются в углублении с камнями.
2. Фильтрация: вода постепенно просачивается через слои камней и почвы, очищаясь от примесей.
3. Насыщение почвы: задержанная вода впитывается корнями растений, поддерживая их рост.
4. Испарение: часть воды испаряется, создавая комфортный микроклимат.
Озеленение двора вдохновлено природой Алтая
Пожарный проезд — не приговор
- Вызов участка — баланс территории
Во дворе очень мало площади, пригодной для размещения всех типов площадок.
- Выход — использование зоны пожарного проезда
Помимо максимально эффективного распределения функциональных зон, в этом дворе мы предлагаем использовать зону пожарного проезда, размещая там как игровые, так и спортивные площадки. При этом соблюдая все нормы, не размещая на проезде стационарные МАФы и растения, спобнве помешать проезду техники.
Команда
Агата Курик
Полина Кургут
Анастасия Игнатенко

